Talpă de fixare pentru subcadru – prindere stabilă pentru suprastructuri de remorcă
Talpa de fixare pentru subcadru este o piesă esențială din categoria piese pentru suprastructuri de remorcă, folosită pentru a crea o legătură sigură și stabilă între subcadru și cadrul de bază. Rolul ei este să reducă mișcarea structurii în sarcină și să contribuie la transportul în siguranță al mărfii. Pentru șoferi de camion, transportatori și ateliere, acest accesoriu pentru camion oferă o soluție practică, rezistentă și economică la montaj sau reparații.
Avantaje principale
- Ajustare precisă pentru montaj rapid și sigur
- Construcție heavy-duty pentru sarcini mari
- Întreținere ușoară datorită finisajului protector
- Stabilizare fiabilă în utilizarea de zi cu zi
- Cost eficient pentru înlocuire și reparații
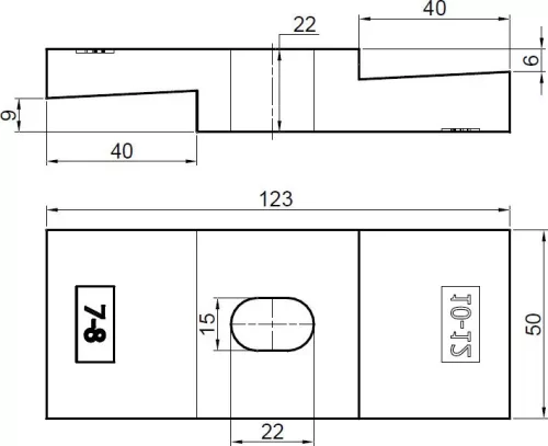
Date tehnice
| Tip produs | Talpă de fixare subcadru |
| Material | Metal rezistent, pentru sarcini mari |
| Tip fabricație | Piesă de completare / înlocuire |
| Fixare | Dimensiuni de nituire sau găurire 7-8 și 10-12 |
| Utilizare | Suprastructură remorcă, subcadru, fixare marfă |
Compatibilitate și domeniu de utilizare
Produsul este compatibil cu majoritatea configurațiilor standard de subcadru, fiind potrivit pentru remorci, suprastructuri și diverse aplicații de tip piese camion. Este alegerea potrivită pentru înlocuire, reparație sau construirea unei structuri noi.
Montaj și utilizare
Înainte de montaj, verificați dimensiunea găurilor și punctele de prindere. Talpa trebuie aliniată corect și fixată cu niturile sau șuruburile potrivite. Este important ca structura să nu prezinte joc sub sarcină, de aceea recomandăm respectarea instrucțiunilor atelierului sau a specificațiilor tehnice.
De ce merită aleasă?
- Solutie practică pentru transportul zilnic
- Potrivită ca piesă camion pentru reparații și întreținere
- Disponibilă într-un magazin online de piese camion, cu livrare rapidă și suport specializat
Produse conexe
Pentru un montaj complet, vă recomandăm și seturi de nituri sau elemente de prindere pentru subcadru.
Întrebări frecvente
Pentru ce vehicule este potrivită talpa de fixare pentru subcadru?
Este compatibilă cu majoritatea remorcilor și suprastructurilor standard, folosite în transportul greu.
Ce dimensiuni de fixare are?
Produsul vine cu găurire/nituire de 7-8 și 10-12, ceea ce îl face compatibil cu multe sisteme uzuale.
Este piesă originală sau de înlocuire?
Este o piesă de completare / înlocuire, concepută pentru reparații rapide și utilizare fiabilă pe termen lung.
Dacă aveți nevoie de o soluție solidă și durabilă pentru subcadru, comandați acum talpa de fixare și beneficiați de livrare rapidă, suport de specialitate și cumpărături sigure într-un webshop de piese pentru camion.