Buzunar de rânză spate "Trailer L" – fixare sigură pentru suprastructura remorcii
Buzunarul de rânză spate "Trailer L" este o piesă practică pentru piese camion și accesorii camion, concepută pentru a oferi un punct de prindere stabil pe platformele cu suprastructură. Ajută la securizarea încărcăturii, reduce riscul de deplasare în timpul transportului și face munca de zi cu zi mai eficientă pentru șoferi, firme de transport și service-uri.
Avantaje principale
- Construcție durabilă – oțel rezistent la coroziune sau aliaj de calitate.
- Montaj simplu – compatibil cu sistemele standard de platformă.
- Siguranță ridicată – puncte de fixare ranforsate.
- Cost eficient – durată lungă de viață și întreținere minimă.
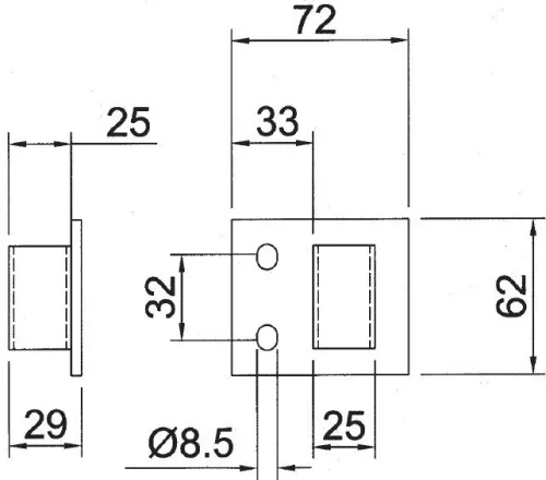
Date tehnice
- Tip produs: piesă suplimentară pentru suprastructură
- Execuție: buzunar spate rânză, varianta Trailer L
- Material: oțel anticoroziv / aliaj de înaltă calitate
- Funcție: fixarea încărcăturii, stabilizarea suprastructurii
Compatibilitate și utilizare
Este compatibil cu majoritatea platformelor standard și cu sistemele uzuale de fixare a încărcăturii. Montajul trebuie realizat cu atenție la poziționare și prindere corectă; pentru utilizări intense este recomandat montajul într-un service specializat. Ideal pentru camioane, remorci, autoutilitare grele și aplicații de transport marfă.
Produse conexe recomandate: rânze, elemente de fixare, chingi pentru ancorarea mărfii.
Întrebări frecvente
Pentru ce vehicule este potrivit?
În special pentru remorci și suprastructuri cu platformă standard.
Este produs original sau aftermarket?
Este o piesă pentru suprastructură compatibilă cu majoritatea sistemelor standard.
Când trebuie înlocuit?
Când piesa este uzată, îndoită sau nu mai asigură o fixare fermă.
Dacă căutați o soluție fiabilă în categoria piese camion magazin online și accesorii pentru camion, acest produs oferă o alegere practică, rezistentă și ușor de utilizat. Comandați acum și beneficiați de livrare rapidă!